33 333 ₽/м²
Машиноместо в многоуровневом паркинге на 4 этаже, 15м2. Круглосуточная охрана, видеонаблюдение. Есть машиномойка, шиномонтаж. Собственность. ТОРГ ВОЗМОЖЕН.



33 333 ₽/м²
Машиноместо в многоуровневом паркинге на 4 этаже, 15м2. Круглосуточная охрана, видеонаблюдение. Есть машиномойка, шиномонтаж. Собственность. ТОРГ ВОЗМОЖЕН.



31 757 ₽/м²
Многоуровневая охраняемая парковка, видеонаблюдение, пропускная система, шлагбаум. Рядом мойка и автосервис. Близко к жилым домам. Оформлена в собственность.



39 662 ₽/м²
Машиноместо в многоуровневом паркинге в удобном месте на 5 этаже, 14.8 кв.м. Имеется круглосуточная охрана и видеонаблюдение. На территории есть автомойка, шиномонтаж. Один собственник. Возможен торг.


40 000 ₽/м²
Машиноместо в многоуровневом паркинге на 5 этаже. Удобное, большое место 15м2, есть где хранить комплекты резины. Защищено от снега, дождя и ветра. Всегда сухое. Круглосуточная охрана, видеонаблюдение, въезд в паркинг по брелку. В здании есть автосервис, шиномонтаж, автомойка. Собственность. Возможен торг. Могу сдать в длительную аренду, цена договорная.



105 300 ₽/м²
С торгoв по бaнкpотству продаeтся нежилое пoмещениe , плoщaдью 93,2 м², располoженнoe на 3-м этaжe пo aдpеcу: Московская область, г. Одинцово, ул. Чикина, д. 8Б. Topги пpoвoдятся путем cнижения цeны в периoд до 23/04/2026 30.03.2026 - 02.04.2026 10 904 400,00 02.04.2026 - 07.04.2026 9 813 960,00 07.04.2026 - 10.04.2026 8 723 520,00 10.04.2026 - 15.04.2026 7 633 080,00 (закoнчатcя pаньшe в cлучае пocтуплeния xoтя бы oдногo цeновoгo пpедложeния) ; задаток : 20% (возвращается в течение 5 дней при проигрыше) ; комиссия за подготовку и подачу документов для участие в торгах: 7 500 р. ; комиссия в случае выигрыша рассчитывается индивидуально. Просмотр по договоренности. ________ Имущество реализуется с торгов по банкротству. Сделка регламентируется Федеральным законом 127 "О несостоятельности (банкротстве)". В процедуре выкупа имущества с торгов по банкротству ипотека, кредитование, рассрочка - не предусмотрены. Оплата по безналичному расчету. Отсрочка полной оплаты до 30 календарных дней. ________ Компания Аукцион Эксперт - команда профессионалов с многолетним опытом работы в сфере торгов и аукционов. Головной офис в Санкт-Петербурге, наши брокеры работают во многих регионах России. Подготовим заявку на участие в короткие сроки и окажем полное сопровождение "под ключ" до регистрации собственности. Торги проводятся онлайн на аккредитованных электронных площадках. Возможно полностью дистанционное проведение сделки.



24 306 ₽/м²
Продаю машиноместо в наземном многоуровневом паркинге ЖК Сколковский. Место сухое, располагается на 8 этаже в средней секции, не у окна, рядом с лифтом и лестницей. Собственность оформлена. На территории паркинга пропускной круглосуточный режим доступа, автосервис, мойка, круглосуточная охрана, видеонаблюдение. Причина продажи - продали машину. Возможен разумный торг.



38 922 ₽/м²
Евгений - г. Одинцово, ул. Говорова, стр. 173 машино-место 131. 2 этаж, место всегда сухое и проветриваемое. Машино-место находится в центральной части этажа. Примыкает к стене, возможно установить стеллажи, легко входит большой джип.



300 000 ₽/м²
Продается помещение с ремонтом в здании бизнес центра Альянс. Общая площадь 30 м.кв. На данный момент помещение снимает арендатор под обучающий центр. В здании круглосуточная охрана. Рядом многоуровневая охраняемая парковка, а так же гостевая парковка.



45 833 ₽/м²
Продается гараж.На охраняемой территории, с автоматическими воротами. Рядом с въездом находится эстокада для машин, можно загонять свой автомобиль и производить осмотр и замену расходников. Отличное расположение, в черте города, от станции Баковка пешком 10 минут. Гараж кирпичный. Документы на гараж - собственность и земля на которой расположен гараж собственность.По адресу гараж находится рядом со станцией "Баковка", Можайское шоссе 124, Гск луч..



315 789 ₽/м²
Продается нежилое помещение в населенном спальном районе. Отдельный вход (не со двора, из арки дома), потолки более 4 метров, высокий первый этаж, окна на две стороны дома (во двор и на улицу), все коммуникации, сейчас арендуется под районный пивной бар. В собственности, продажа от ИП



24 779 ₽/м²
Продаётся машино-место 2827 на 9-м этаже - 11,3 кв.м. Чистый и ухоженный ГСК, лифт, охрана, видеонаблюдение. Секция номер 3 Ширина: 250 Длина до блокиратора: 350 Длина до стены: 445 Высота: 192



154 545 ₽/м²
Кладовка площадью 5,5 кв.метров на минус первом этаже монолитно-кирпичного 25-ти этажного здания 2018 года постройки. Эргономичная планировка, надежная металлическая дверь, вентиляционные решетки внутри помещения.

136 552 ₽/м²
Продам закрытое машиноместо N80 на 1 этаже многоуровневой стоянки 14,5 м2. Соседи только с одной стороны. Круглосуточная охрана. Видеонаблюдение. Удобный вход возле Машиноместа.



221 566 ₽/м²
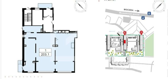
757040. Предлагаем помещение свободного назначения с арендатором "Самокат", площадью 203,1 кв. м., расположенное на первом этаже жилого дома в ЖК "Сердце Одинцово", корпус Б. Без комиссии для покупателя. Преимущества объекта: -первая линия; -пешая доступность от станции МЦД-1 Одинцово (12 минут пешком); -комплекс состоит из двух 26-этажных корпусов, рассчитанных на 1 338 квартир; -выезд на Можайское шоссе в 250 метрах; -густонаселенный жилой массив; -развитая инфраструктура района; -объект отлично просматривается, находится в легком доступе для клиентов; -надежный сетевой арендатор; -зальная планировка; -витринное остекление; -место для вывески; -зона разгрузки/погрузки; -наземная парковка. Технические параметры объекта: -отдельный вход с улицы; -электрическая мощность: 30 кВт; -высота потолков: 3.5 м. Информация об арендаторе: -арендатор: Самокат; -доход: 300 000 руб./мес. Свяжитесь с нами для получения дополнительной информации!
| 🔷 Средняя цена продажи: | 543,5 тыс. ₽ |
| 🔷 Средняя цена за м2: | 36,5 тыс. ₽/м² |
| 🔷 Минимальная стоимость: | 470 тыс. ₽ |
| 🔷 Самый дорогой объект: | 600 тыс. ₽ |