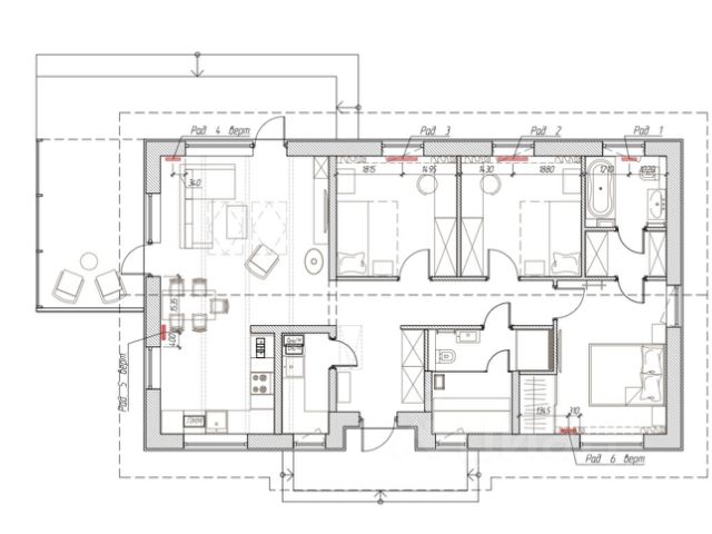
Продается дом по проекту mikea 3 back (проект приобретен у официального застройщика) с частичным ремонтом в 13 км от Звенигорода и в 60км от Москвы по Новорижскому/ Рублево-Успенскому/Ильинскому шоссе в КП четыре сезона-2. Возможна прописка. -электричество 25квт - центральное водоснобжение (скважина) -канализация септик (5+) -интернет, можно подключить оптоволокно Фундамент утепленная шведская плита, стены из газоблока , толщина 400, стены покрыты штукатуркой ротбанд, готовы к обоям , в доме 3 спальни, 2 санузла, котельная, кухня-гостиная (1 мастер спальня со своим санузлом и углублением под гардероб, 2 спальня со своей гардеробной, 3 гостевая спальня). Веранда уличная , закрытая и открытая. По коммуникациям: отопление напольное через электрический котел , в комнатах батареи. Водоснобжение -центральное Канализация-септик (+ 2 колодца для слива воды). Система умного отопления с датчиком на улице и в доме, система считывает температуру на улице и в доме и котел включается когда температура упадет до заданной отметки, и выключается сам когда достигается нужной температуры, что позволяет существенно экономить на электроэнергии в зимние месяцы. Из недоделанного: Стены готовы к поклейке обоев (обои под покраску есть, оставим новым хозяевам) , двери, потолки, второй санузел( установлена инсталляция, встроена душевая система hansgrohe) , пол залит, осталось положить плитку +мебель. В большом санузле есть место и вывод под ванну ( ванна есть, установка в процессе ) установлена душевая система hansgrohe , куплена и привезена из Германии. Встраиваемая техника ( Bosch, gorenje , beko - производство Евросоюз ) + японский холодильник Toshiba остаются в доме. Окна двухкамерные rehau . В доме положен керамогранит , в комнатах ламинат. В кухне-гостиной потолки 5,5 метров, в остальной части дома 2,8 . По участку : Вид разрешенного использования- для дачного строительства, 10 соток, участок ровный, сухой, залитая бетоном стоянка как на участке так и за участком на 4 автомобиля, откатные ворота с итальянским механизмом. О поселке : закрытый КП , откатные ворота, комендант,видеонаблюдение , контейнеры для мусора. По инфраструктуре: в 2 минутах на машине село Каринское , там вся инфраструктура, школа, детсад гос., аптека, ozon, wb, Яндекс , сетевые магазины, рынок , хоз магазин, 2 пиццерии и пивной магазин. До Звенигорода 15 минут , около поселка в 1 минуте ходьбы остановка общ.транспорта, можно доехать как до Звенигорода, так и до Москвы (455 автобус). Рядом лесной массив, в пару километрах протекает Москва река, есть пляж , на машине 5-10 минут, можно дойти пешком. Продажа в связи с переездом По всем вопросам звоните и пишите Купить коттедж с участком 10 соток в деревне Дьяконово Московской области.


















































































