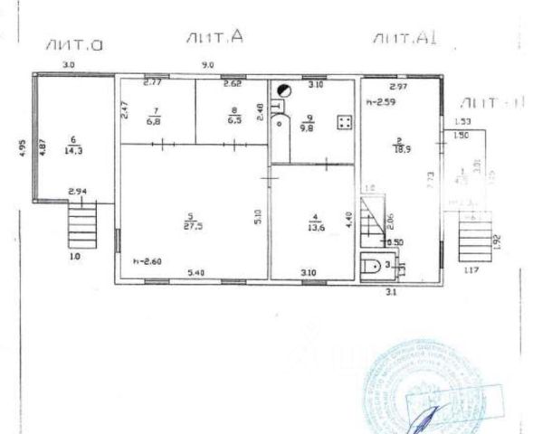
К продаже предложен 2-х этажный дом общей площадью 169,9 кв.м. на земельном участке 4 сотки и расположенный в с. Ромашково, МО, Одинцовского района, визуализация которого предложена для Вашего удобства. Отличное сочетание цены и качества! Ремонт: WHITE BOX (по желанию Покупателя возможно отделка дома под "Ключ"). Двор благоустроен. Эргономичная планировка дома позволяет разместить все самое необходимое и чувствовать простор и функциональность. На первом этаже дома: входная группа с выделенной гардеробной нишей, гостевой санузел с котельной, гостевая комната/спальня, просторная кухня -гостиная с панорамными окнами+ предусмотрено окно/дверь для выхода на террасу( может использоваться по желанию будущего владельца). На втором этаже: три спальни, совмещенный санузел, гардеробная, пространство хола. Высота потолков- 3.20. Теплые полы - вся зона 1-го этажа и частично зона 2-го этажа ( санузел/коридор) Коммуникации: Газ-центральный ,вода -центральная, на одном из участков есть скважина, свет - 15 кВт, канализация - септик. Все коммуникации заведены в дом! Интеллигентные соседи. Ромашково удивительное место, и расположено окружении природных заповедников Ромашковского леса, Парка "Малевича", Парка "Раздлье" и многих других живописных мест. Жить в зеленой зоне заповедников и при этом почти в Москве (3 км от МКАД) -ЛУЧШИЙ ВЫБОР! Сложившаяся инфраструктура: магазины, супермаркеты "Дикси" "Пятерочка", аптеки, школа "Лидеры". фитнес клубы, детский сады (Филиппок и Филип), поликлиника. Ромашково - идеальное место для занятий спортом, тут есть конно-спортивные и футбольные клубы, в летний период проходят велокроссы, зимой -лыжные гонки, раздолье для любителей скандинавской ходьбы. Есть все для комфортного проживания. В полутора километрах ТЦ "Твой дом" ТЦ "Вегас" с фудкортом, магазинами и кинотеатром. В шаговой доступности ресторан "Клевый", расположенный на берегу реки Чаченки, уютное пространство и видовые площадки, на берегу есть мест для рыбалки, можно арендовать баню, снять беседку с мангалом и покачаться на качелях), территория ресторана не просто ресторан, а большой гостеприимный дом, где Вы можете насладится великолепной кухней и созерцанием природных красот. Комфортная транспортная доступность, самый удобный -электричка. От Ромашково до Белорусского вокзала всего 23 мин., кроме того на электричке можно доехать до Московских станций "рабочий поселок", "Славянский Бульвар" и Фили за 12 -15 минут. От метро "Молодежная" на маршрутном такси -15-20 мин. На автомобиле, две скоростные трассы, платная и бесплатная. Один взрослый собственник, зарегистрированных нет, без обременений. Свободная продажа. Ипотека возможна. Оперативный показ. Звоните и приезжайте на просмотр. Купить дом в селе Ромашково Московской области.















































































