


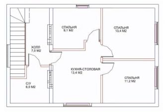
Арт. 87991624. Лесной участок 47 (по факту 70) соток в 30 км. от МКАД. Гостевой дом с гаражом 127 м2. Газ. Участок: Участок состоит из двух зон ухоженной зоны (23 сотки) с ландшафтным дизайном, лесными и садовыми деревьями и кустарниками, дорожками из натурального камня и освещением, а также зоны реликтового леса (24 соток). Высажено несколько сотен деревьев, кустарников и многолетних растений. Более ста вековых деревьев на участке. По границе участка протекает ручей. Среди деревьев оставлена площадка 13х18 м под постройку жилого дома. Также на участке находится утепленный барбекю-домик 4х4 м из клеёного бруса с печкой и террасой под крышей. Участок граничит с лесополосой, что фактически добавляет к нему ещё около 20 соток леса (можно взять в аренду или выкупить). Въезд - откатные ворота с шириной проёма 5 метров Дом: Кирпичный теплый дом (127,23 м2) с гаражом на 2 м/м на первом этаже и жилым вторым этажом (может стать гостевым домом или временным жильем на время строительства). Бетонные перекрытия. Отделка по современным стандартам. 3 спальни (13,4/11,2/9,1) м2. Кухня-столовая 13,4 м2. Два с/у: 6 и 3,1 м2. Гараж 48,9 м2 с секционными воротами "Hormann" (ширина 5,5 метра). Водяной теплый пол по всей поверхности плитки: прихожая, кухня-столовая, 2 с/у и гараж. Кондиционер в каждой комнате. Центральное газоснабжение. Газовое отопление (двухконтурный котел Buderus), бойлер 200 л. Электричество - 45 кВт. Септик Юбас-8. Летний водопровод и колодец. Система водоочистки. Вневедомственная охрана, видеонаблюдение. Окружение: Московская область, Одинцовский район, пос. НИИ "Радио", ДСК "Радио". Вся инфраструктура п.г.т. Калиненец (детские сады, школы, поликлиники, торговые центры). Въезд в поселок через шлагбаум. Круглогодичный доступ (зимой снег централизованно убирает грейдер). Доброжелательные соседи, многие живут круглогодично. Транспортная доступность: Близко от Москвы (расстояние от МКАД 30 км, около 30 минут). Хорошая транспортная доступность (заезд с 2 шоссе Минского и Киевского). Автобус от м. Саларьево либо от станции Голицыно. Дорога - асфальт + 100 метров грунтовка с щебнем. Документы: 1 взрослый собственник, в собственности более 10 лет. Без обременений и ограничений. Готовы быстро выйти на сделку. Купить участок для дачи в поселке НИИ Радио Московской области.