182 381 ₽/м²
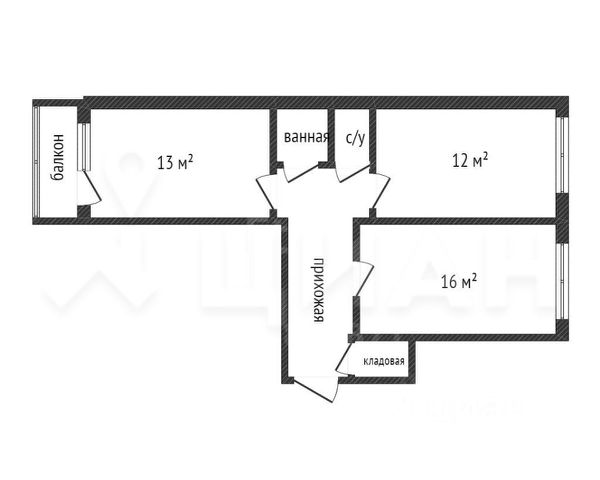
Продается 2-х комнатная квартира, в пешей доступности от МЦД "Сколково". Расположена на 4 этаже 24 этажного. Квартира имеет раздельные комнаты, 1 лоджию, совмещенный санузел и гардеробную. Подъезд чистый, без посторонних запахов, приятные соседи. Дом 2005 года постройки. Расположение: г. Одинцово, улица Чистяковой, 14. В шаговой доступности станция МЦД Сколково. На автомобиле удобный выезд на Минское шоссе и платную дорогу в сторону Москвы. До Москва-Сити по платному участку дорога занимает не более 25 минут. Инфраструктура: В шаговой доступности расположены 2 детских сада, 1 школы. Детские и спортивные площадки возле каждого дома. ТРЦ "Вегас" (10 мин на авто). Магазины, кафе рестораны в шаговой доступности Для прогулок - Подушкинский лес и территория Инновационного центра Сколково Документы: Один взрослый собственник. Свободная продажа. Физически и юридически свободна. Быстрый выход на сделку. Полная стоимость в ДКП















































































