


286 290 ₽/м²
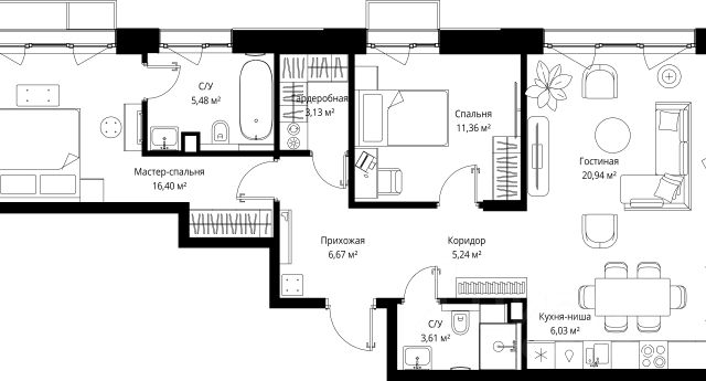
Прямая продажа от застройщика. Продаётся 2-комнатная квартира общей площадью 66.02 м² без отделки в премиальном жилом комплексе "МЫС" на 10-м этаже 12 этажного дома. Квартира расположена в корпусе "Волга". Проект МЫС — это, прежде всего, идеальное место для семей. В рамках проекта построят государственную школу, два детских сада и дворец спорта площадью 20 000 м2 с термальным комплексом, выплывным бассейном, фитнес-залом, теннисными, сквош и падел кортами и секциями для детей. На территории площадью, сравнимой с тремя парками Зарядье, появятся кафе и рестораны, пруд с набережной, спортивные и детские площадки, скейт-парк, лыжные и веломаршруты. Расположение: - 2 минуты до скоростной трассы М1 и Минского шоссе; - 10 минут до МКАД; - 15 минут до МЦД Лесной Городок - 20 минут до делового центра "Москва-Сити"; - 28 минут до аэропорта "Внуково". Благоустройство: - велосипедные и лыжные маршруты; - собственная набережная и парк; - лаунж-зоны в окружении природы; - беседки у очага; - дворец спорта площадью 20 000 м²; - термальный комплекс с тремя бассейнами; - 4 теннисных и падел-корта; - 6 сквош-кортов; - многофункциональный спортзал; - скейт-парк; - просторная площадь для прогулок с фонтаном; - детский клуб с творческими секциями; - гастро-доминанта; - кафе у пруда, рестораны, ритейл. Окружение - соседство с лесным фондом; - школа на 1250 мест и 2 детских сада на 350 и 255 мест; - Дубковский и Подушкинский леса, парк "Рассказовка", Мещерский парк. Действуют специальные условия при 100% оплате, подробности уточняйте у менеджера в офисе продаж. Купить 2-комнатную квартиру в новостройке в городском округе Одинцовском Московской области.








































































































































































