


196 484 ₽/м²
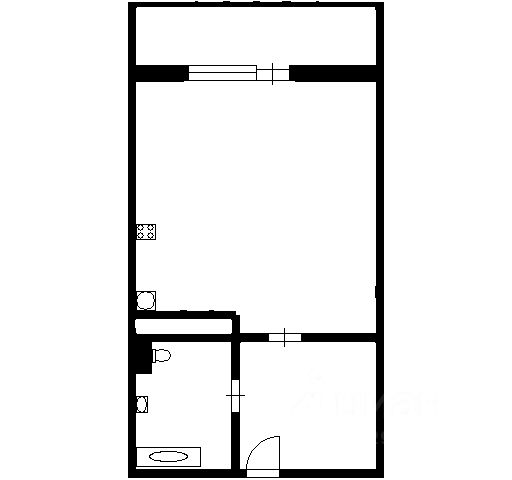
Предлагаем вашему вниманию уютную 1-комнатную квартиру общей площадью 45,8 кв.м на 5 этаже в новой очереди строительства ЖК "Одинбург". Этот обновленный проект от компании AFI Development включает в себя актуальные архитектурные решения и функциональные планировки. Для всех действует предложение от застройщика Назови свою скидку, подробности акции уточняйте у менеджеров отдела продаж. Новый Одинбург - это: • Возможность выбора между квартирами без отделки и с базовой отделкой (White Box). • Высокие потолки 2.8 м (в чистоте). • Просторные кухни-гостиные до 27 кв.м. • Балкон или лоджия в каждой квартире с панорамным остеклением. • Нишы для хранения вещей в прихожей и отдельные гардеробные. • Несколько санузлов для больших семей. • Живописный вид из окон на лес и городские пейзажи. И даже больше, чем комфорт-класс: • Монолитные дома с вентилируемым фасадом и облицовкой из декоративного камня. • Дизайнерская отделка мест общего пользования с мебелью и архитектурная подсветка фасадов. • На первых этажах предусмотрено помещение консьержа 24/7 и колясочная. • Развитая инфраструктура: в шаговой доступности расположено 6 детских садов, школы и лицей, магазины, кафе, салоны красоты и спортивные объекты. • Огороженная территория: двор без машин для безопасного отдыха и прогулок с детьми разных возрастов. • Машиноместа в отапливаемом подземном паркинге с доступом из лифта, в многоуровневом наземном паркинге и гостевые парковочные места. • Транспортная доступность: 7 минут до МЦД Одинцово, 10 минут до МКАД, 17 минут до центра Москвы по трассе М-1. Пространство для жизни: • Безопасность: наличие системы видеонаблюдения обеспечивает спокойствие и защиту вашего жилья. • Природа рядом: комплекс граничит с Подушкинским и Дубковским лесами, что позволяет наслаждаться свежим воздухом. • Большое количество спортивных объектов: ледовый дворец, волейбольный центр, центр горнолыжного спорта и школы Олимпийского резерва РФ и целый спортивный парк имени Героя России Ларисы Лазутиной. • Коммьюнити соседей со схожим образом жизни. Не упустите шанс стать владельцем квартиры в одном из самых перспективных жилых комплексов Подмосковья на выгодных условиях! Звоните прямо сейчас, чтобы узнать подробности и записаться на просмотр. Продается 1-комнатная квартира на 5 этаже в Одинцово.



























































































